Durabilité, éco-construction et savoir-faire locaux sont les maîtres-mots de notre pratique.
Nos réalisations s’appuient sur une recherche de qualité constructive, privilégiant des matériaux durables et une approche raisonnée de l’architecture. L’agence valorise les savoir-faire traditionnels locaux et s’inscrit dans une démarche respectueuse du territoire et de ses ressources.
Le dessin à la main occupe une place centrale dans le processus de conception. Les esquisses permettent d’explorer les volumes, la lumière et les proportions avec sensibilité, avant leur traduction en projet architectural. Cette pratique favorise un dialogue direct avec les maîtres d’ouvrage et une compréhension fine des intentions du projet.
REXER Architecture accompagne des projets variés — maisons individuelles, rénovations, équipements ou interventions sur le bâti existant — avec une attention particulière portée à la cohérence entre conception, matière et mise en œuvre.
REXER Architecture
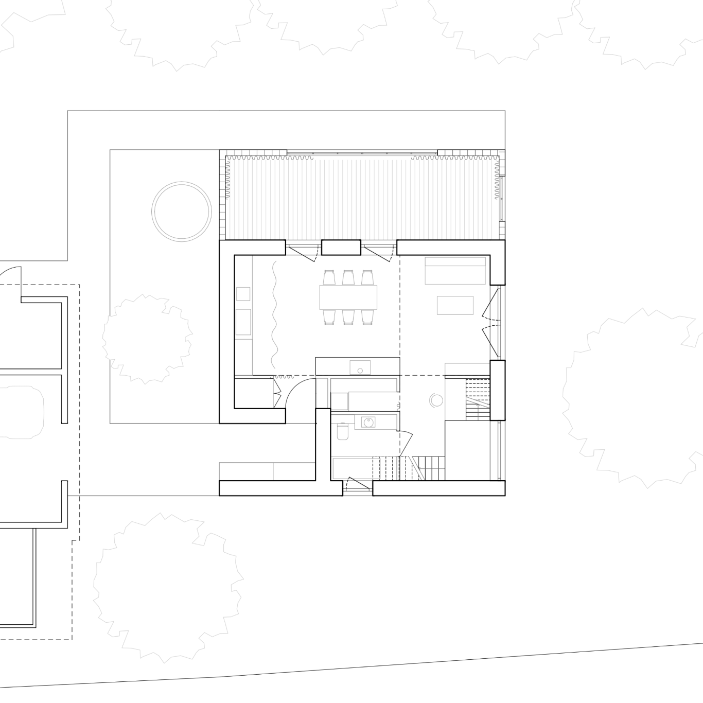
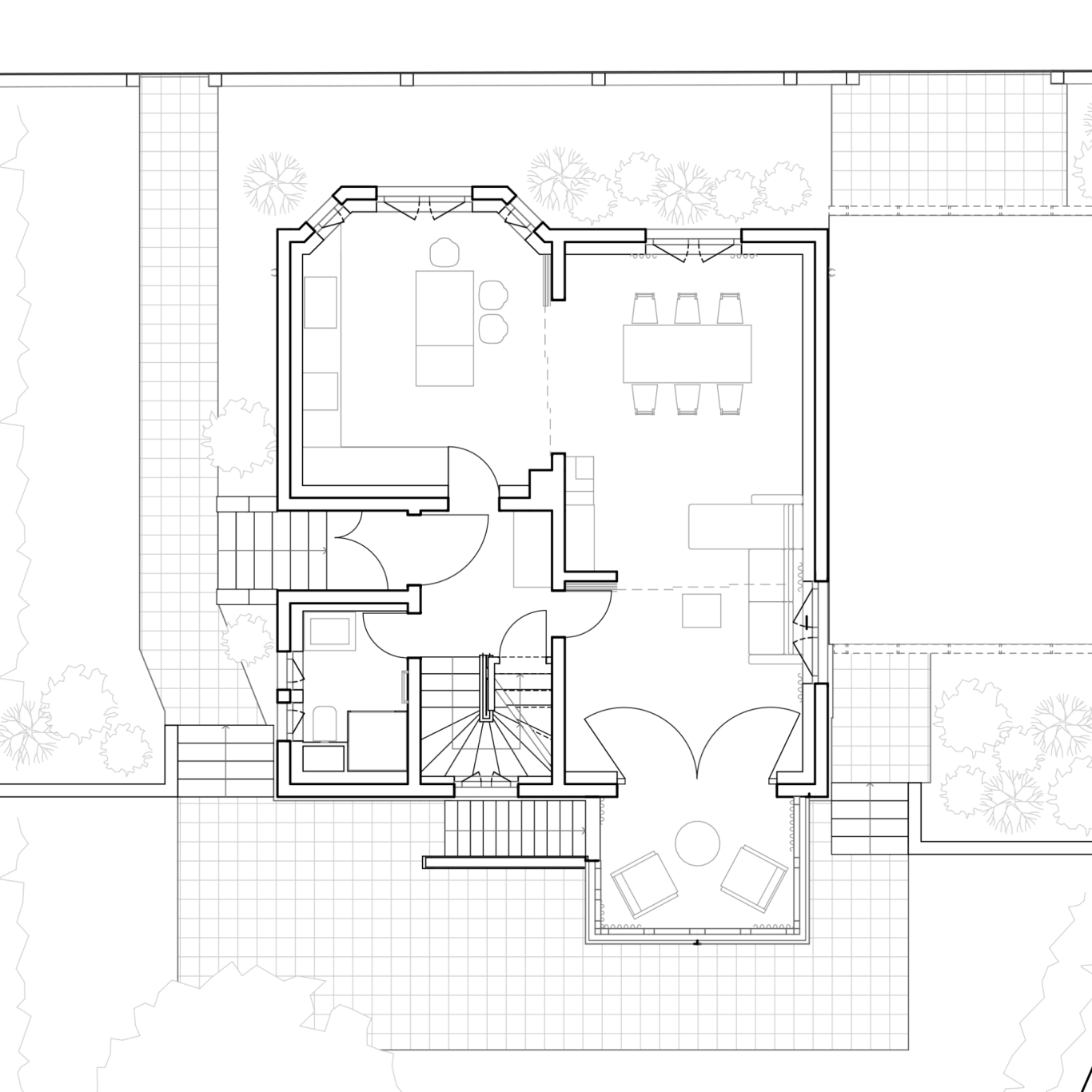
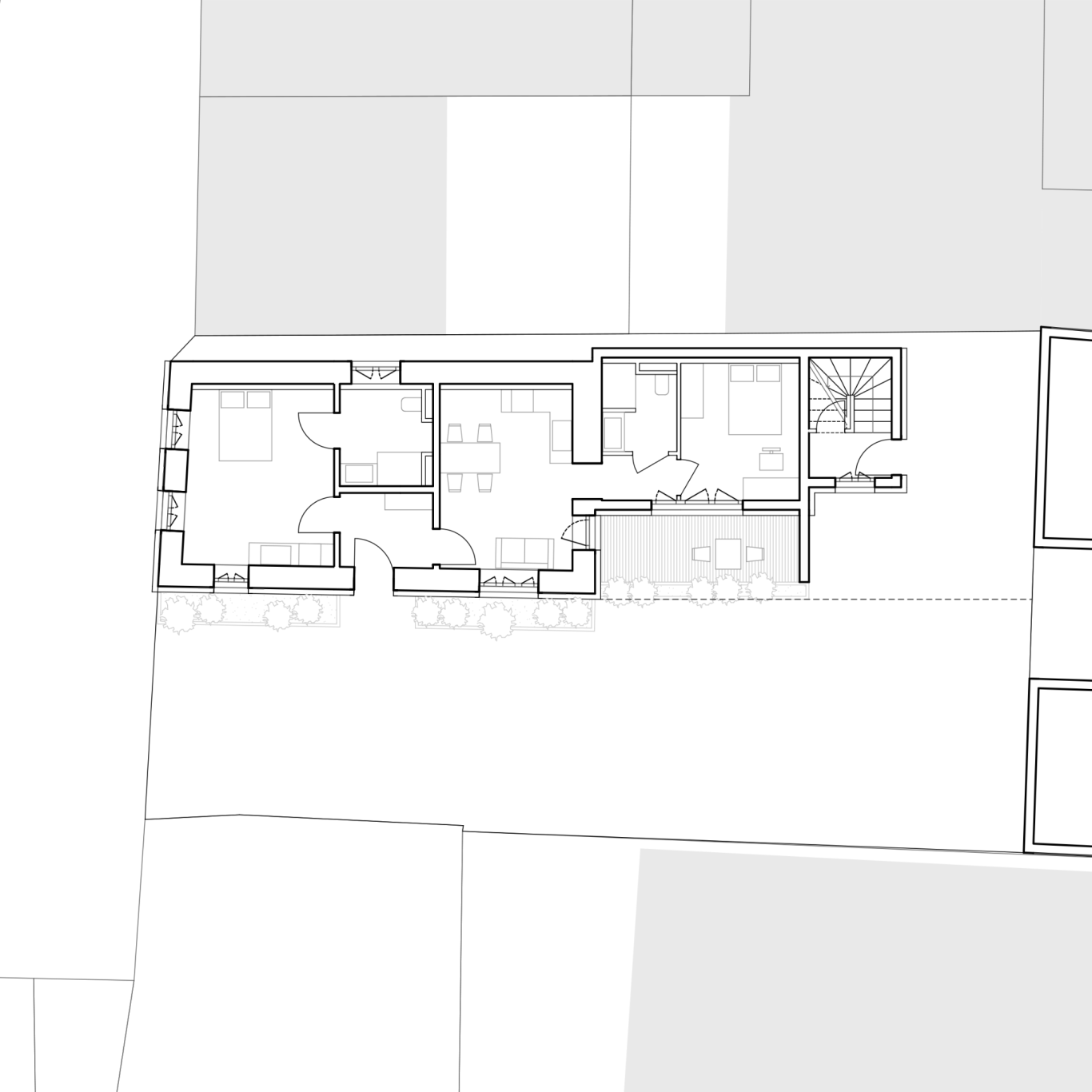
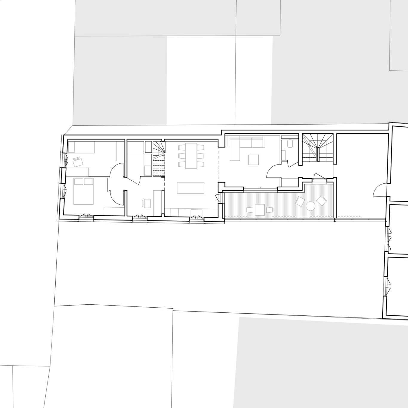
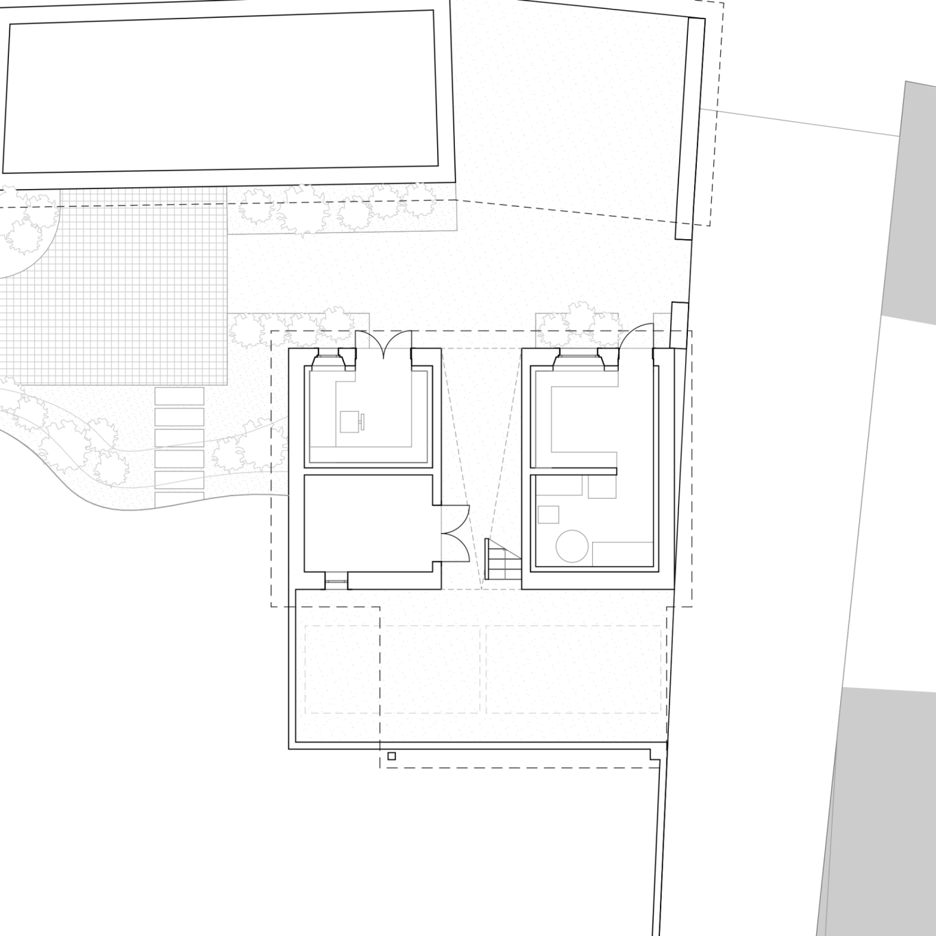
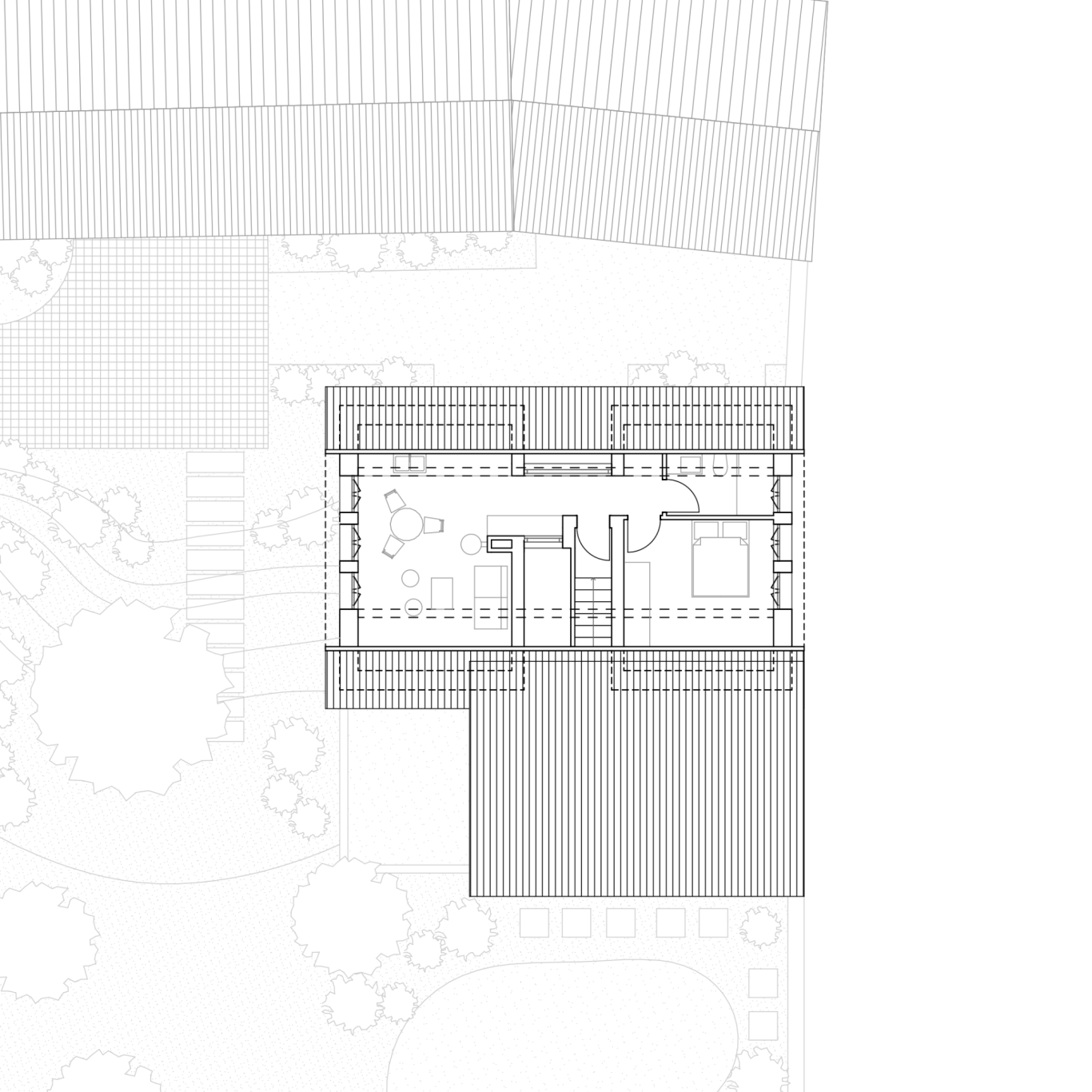
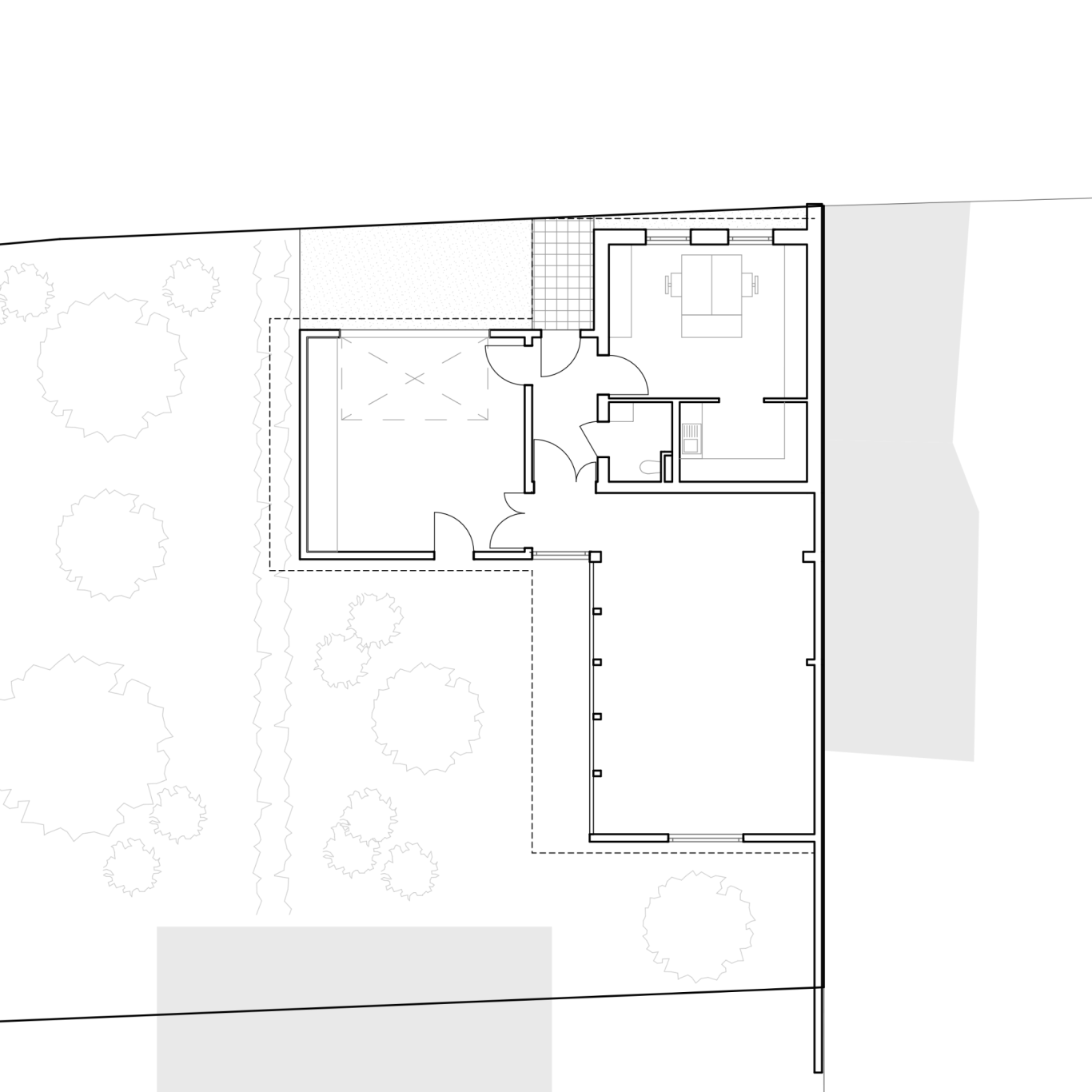
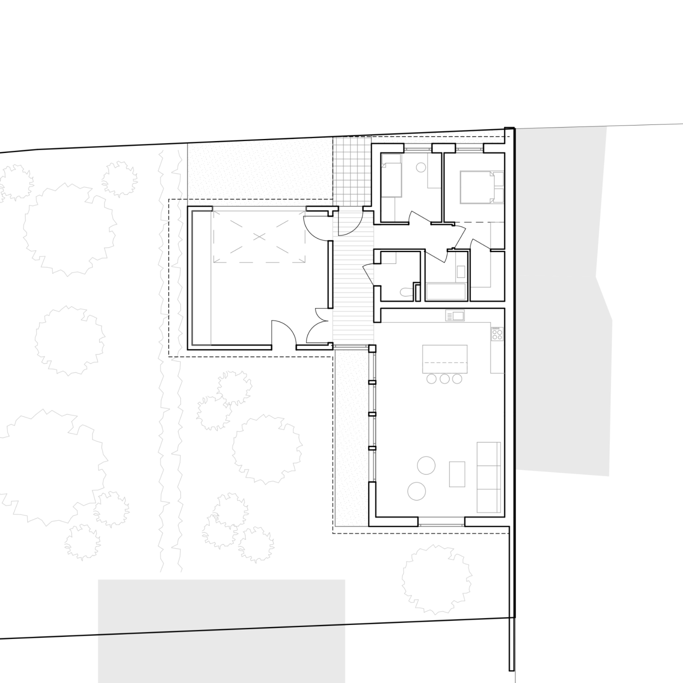
Projets en cours
< Balayez les images pour en voir plus >
Téléphone : +33 6 10 11 41 93
Courriel : contact@rexerarchitecture.fr
Adresse : 2A Rue de la Gare, Hattmatt, 67330, Bas-Rhin, France
Agence d’architecture basée à Hattmatt (67330), intervenant dans toute la région de Saverne, le Bas-Rhin et le Grand Est.
©REXER Architecture 2025. Tous droits réservés.



























































